Preventa

Casa Bellavista Modelo B 1 Planta, Dzityá Yucatán

  • Casas
  • 320.00 M2 Construcción
  • 450.00 M2 Terreno
  • 3 Habitaciones
  • 4.5 Baños
  • 3 Estacionamientos
Precio:
$ 6,650,000.00 MXN

Dzityá es ideal para familias que desean disfrutar de espacios amplios y seguros, rodeados de naturaleza y con fácil acceso a las principales atracciones y servicios de Mérida. Además, su cercanía a la carretera Mérida-Progreso facilita el acceso a las playas y zonas turísticas de la región.

Concebida con la idea de evitar totalmente las escaleras, esta casa flat, en una sola planta, tiene lo que buscas en una casa para vivirla un largo tiempo o ideal para ser tu casa de retiro.

3 unidades disponible, en una de las mejores zonas de Dzityá, a escasos 4km del periférico norte, accesos rápidos a los servicios de lujo, escuelas, bancos, todo a menos de 7 minutos de distancia.


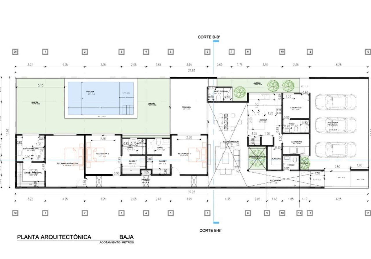
Casa Modelo B:

  • Garage techado para 3 autos. 
  • Vestíbulo acceso ( ofrece privacidad).
  •  Jardín interior.
  • Sala / Comedor de 4.35m altura x 10.50 m.
  • Cocina concepto abierto con isla 3.70 x 4.30 m.
  • Cuarto de alacena.
  • Baño de visitas.
  • Recámara principal con amplio clóset vestidor y con baño.
  • Recámara 2 con clóset y baño.
  • Recámara 3, con clóset y baño.
  • Área lavado techada.
  • Cuarto de servicio con baño incluido.
  • Terraza con acceso a la alberca y amplio jardín exterior.
  • Cuenta con baño social en la alberca.
  • Alberca mide 8.50 m de largo x 3.50 m de ancho con acabado chukum.


  •  Pisos gran formato a escoger ( MARMOL INCLUIDO).
  •  Granito en cocina a escoger.
  •  Aluminio negro linea S80 italiana.
  •  Grifería Grohe o similar.
  • Cisterna.


Opción. Interesados pueden cotizar el equipamientos con constructor: Closet, cocina, césped, climas, ventiladores, tanque estacionario, calentador, y todo lo que necesite para mudarse.

  • Aparta con $20,000 vigencia 10 días.
  • Enganche: 30%.
  • Aceptamos créditos bancarios y recursos propios.
  • Total de unidades: 22. 
  • Disponible 4 unidades de modelo B: Lote 2, 5, 8 y 11.
  • Entregas: SEPTIEMBRE / OCTUBRE / DICIEMBRE 2025.
  • Entrega II Etapa: MAYO / JUNIO 2026.